Smart Loggia

La piccola raffinatezza

Le finestre a tutta altezza che si aprono sul lago e sul parco e una loggia per potersi ritirare all'aperto. La stanza doppia nell'angolo a sud del secondo piano offre una magnifica vista sul panorama lacustre in continuo movimento.

Design im Seehotel Ambach: Smart Loggia

Design

Parte dell’arredamento, come il modulo laterale in pino americano con specchio rotondo integrato, è stato disegnato dall’architetto Othmar Barth in esclusiva per le camere del suo amato Seehotel Ambach. Non passano inosservati nemmeno alcuni pezzi di design senza tempo che conferiscono alla stanza un inconfondibile charme retró. Un esempio? La lampada da tavolo Elmetto realizzata dal designer italiano Elio Martinelli nel 1976, giustapposta alla sedia Selene di Vico Magistretti con il suo rosso acceso, realizzata nella stessa epoca.

 

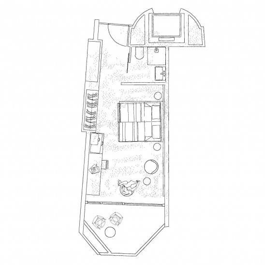
Seehotel Ambach: Grundriss Smart Loggia

Architettura

Questa stanza doppia nell'angolo a sud del secondo piano ha una propria loggia, da dove si ammira il rigoglioso panorama lacustre e il parco del Seehotel.

Seehotel Ambach: Smart Loggia Badezimmer

Il bagno

Ceramica chiara, vetro, luci soffuse, linee chiare e sobrietà nell'arredo. Il piccolo bagno completamente rinnovato ricorda il design scelto dallo stesso Barth agli albori del Seehotel: la luce del bagno, ad esempio, è stata installata su un vistoso tubolare metallizzato - in pieno stile anni ’70 - dalla ditta brissinese di arredamento d'interni Barth.

  • Letto matrimoniale
  • Poltrone
  • Aria condizionata
  • Minibar
  • Cassaforte
  • TV 40 pollici
  • Internet Wi-Fi gratuito
  • Telefono
  • Asciugacapelli
  • Specchio da cosmesi
  • Borsa da spiaggia con asciugamani
  • Accapatoi

La Smart Loggia

Stanza doppia al secondo piano. Balcone con straordinaria vista sul lago. Piccolo bagno completamente rinnovato.

  • Ricca prima colazione a buffet in riva al lago
  • Cena con menu di 5 portate a scelta
  • Settimanalmente: Winemakers Night, Rooftop Aperitivo, Dessert Buffet e Gala Dinner
  • Esteso parco con spiaggia privata
  • Pontile privato
  • Badehaus con whirlpool, sauna finlandese (90°) e biosauna (65°) con raggi infrarossi
  • Piscina riscaldata all'aperto lunga 20 m
  • Lettini
  • MTB, canoe, Standup paddles, pedalò, barca a remi ad uso gratuito
  • Attrezzature fitness da esterno
  • Mobilcard per l’uso illimitato di tutti i mezzi pubblici in Alto Adige

  • I prezzi variano in base alla stagione, alla durata del soggiorno e all’occupazione.
  • I prezzi si intendono a persona e giorno con colazione, cena di 5 portate e tutti i servizi inclusi descritti, esclusi l’imposta di soggiorno di 3,00 Euro (dai 14 anni).
  • Eventi settimanali: Winemakers Night, Rooftop Aperitivo, Dessert Buffet e Gala Dinner.
  • Per il solo pernottamento con prima colazione si applica una riduzione di 20 Euro sul trattamento di mezza pensione. È possibile prenotare sul posto la mezza pensione per singole giornate (40 Euro al posto di 20 Euro), per i bambini da 3 a 10 anni: 20 Euro.
  • Per i pasti non consumati non è previsto rimborso.
  • Bambini in camera dei genitori fino a 1 anno gratis, da 1 a 3 anni sconto del 85%, da 3 a 6 anni 75%, da 6 a 10 anni 50%, da 10 a 14 anni 25%.
  • Camera doppia uso singola + 50%.
  • Una mobilità agevole e gratuita grazie alla nostra guest card: il vostro pass per tutti i mezzi di trasporto pubblico dell’Alto Adige, tra cui autobus, funivie e treni.
  • Stazione di ricarica elettrica: quattro colonnine universali per ogni tipo di auto con potenza di 11kW ciascuna. La tariffa sarà addebitata per ogni kWh caricato. Prenotazione raccomandata.
  • In caso di:
    Disdetta fino a 15 giorni prima della data di arrivo non saranno applicate penali.
    Disdetta a partire da 14 giorni prima della data di arrivo: 30% del prezzo totale convenuto.
    Disdetta a partire da 7 giorni prima della data di arrivo: 80% del prezzo totale convenuto.
    Partenza anticipata, arrivo ritardato o mancato arrivo: 100% del prezzo giornaliero convenuto per ogni giorno non usufruito.
  • Per proteggervi da interruzioni impreviste del viaggio, raccomandiamo vivamente la polizza di annullamento viaggio Hotelstorno Plus che può essere facilmente prenotata sul nostro sito web.
  • Animali domestici non ammessi